For your FREE Valuation please contact our office here

0131 225 5567 | [email protected]

property image
property image
property image
See all 32 photos
HouseDetached Villa
For Sale

1 Primrose Drive, The Willow, Craigiehall Meadows, Craigiehall, Edinburgh, EH30 9TW

£550,000 Offers Over

Overview

5
2
2
Front & Rear
Garage & Driveway
G
Freehold
D

Description

Welcome to The Willow house-type on Primrose Drive: a collection of eight exquisite 5-bedroom detached family homes that have been thoughtfully refurbished to combine mid-century character with contemporary comforts. Set within particularly generous, private garden grounds, each home enjoys a truly tranquil setting close to the banks of The River Almond, surrounded by lush countryside providing privacy and a wonderful sense of seclusion, while remaining just minutes from the city centre.

Located on a quiet cul-de-sac, no through road, residents of The Willow, which includes numbers 1 - 8 on Primrose Drive, will enjoy the very best of city and country living.  

For more information about the Craigiehall Meadows development, visit:  https://www.craigiehall-meadows.co.uk/   

Property Summary: 

- Detached Family Home set over two levels 

- Spacious reception hall with practical understair store and a guest WC 

- Sophisticated living room overlooking the garden 

- Contemporary dining room with French doors leading to the garden 

- Stylish kitchen with integrated appliances and direct garden access 

- Ground floor double bedroom5/ home office   

- Principal bedroom with en-suite shower room and dressing area 

- Three further double bedrooms with excellent proportions and storage   

- Family bathroom with three-piece suite and overhead shower 

- Extensive private gardens to the front and rear 

- EPC Rating: D | Council Tax Band: G  

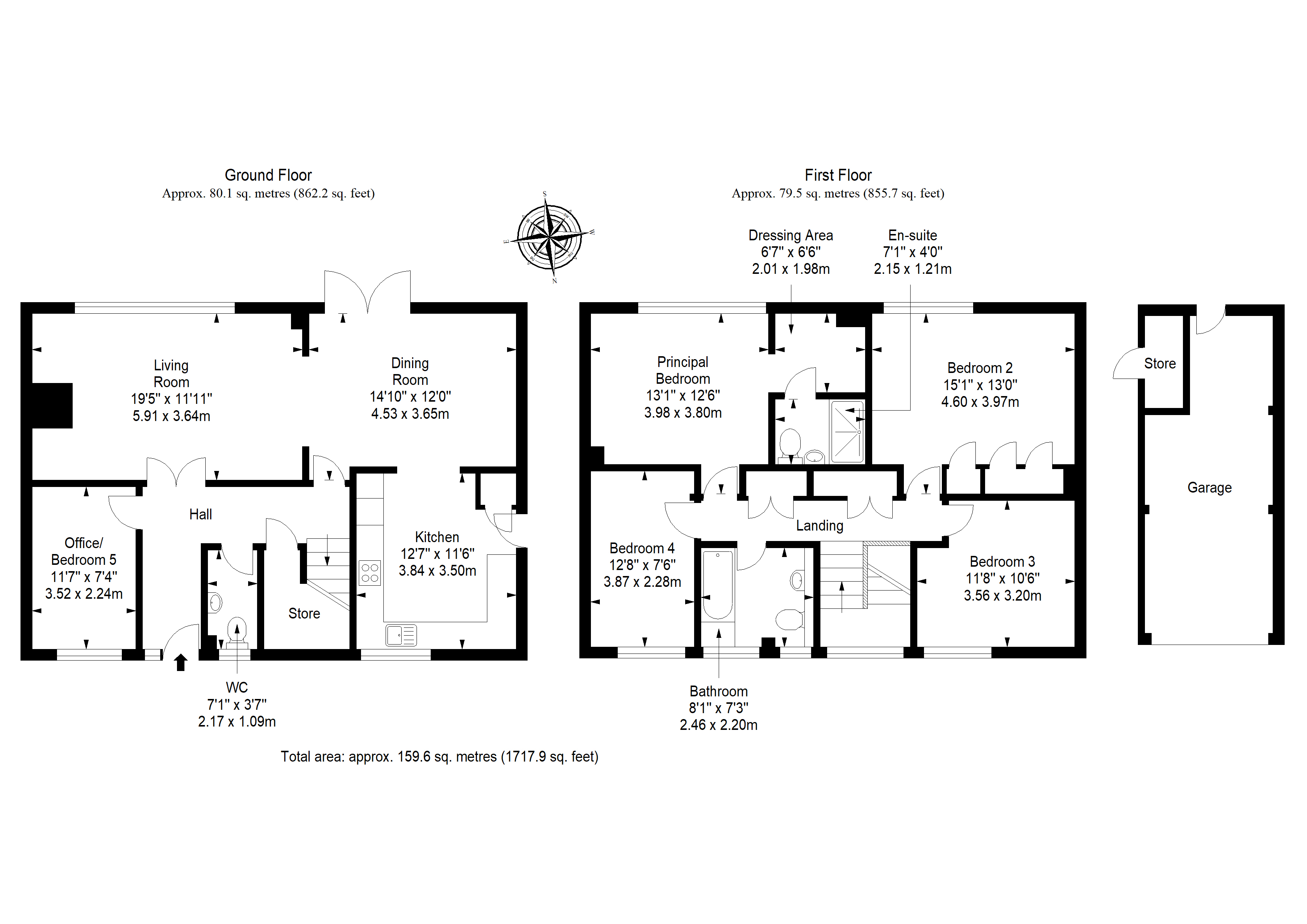
Upon entering, you are welcomed into a broad and impressive L-shaped reception hallway (with understair storage and a guest WC), establishing the sense of space found throughout the home.  

Leading off the reception hallway is the living room - a bright and inviting reception space with large windows framing the garden views, perfect for relaxing or entertaining. It benefits from an open-plan layout to the neighbouring dining room, the latter extends seamlessly to the garden via French doors, creating an effortless flow between indoor and outdoor living. Adjacent, again with a semi-open-plan flow is the kitchen: a contemporary delight, complete with sleek units, neatly integrated appliances, and direct access to the garden. This large open-plan living space is ideal for modern family living and entertaining all year round.  

Completing the ground floor is a versatile home office, which could be used as a fifth bedroom, play room or snug, making it ideal for working from home or accommodating guests.  

Ascending the softly carpeted staircase, you are welcomed by a bright and airy landing, leading to four further double bedrooms and a modern family bathroom. The principal bedroom, with its dressing area and en-suite shower room, forms a serene retreat, boasting tranquil views and a sunny south-facing aspect.  

Bedroom two is a particularly spacious double bedroom and features built-in wardrobes, while bedrooms three and four both also provide generous accommodation. A well-appointed family bathroom, complete with bath and overhead shower, serves the remaining bedrooms.  

Externally, the houses on Primrose Drive all come with extensive, private front and rear gardens. The secluded rear gardens borders on the banks of the River Almond and bathes in warm sunshine throughout the day. Each house boasts a long, private driveway that leads to a single garage and adjoining store, providing excellent storage for cars and garden equipment.  

 

Like its neighbours, this home has been extensively refurbished to create a stylish, low-maintenance haven. Works include triple-glazed windows and new doors, updated heating and electrics, new kitchen and bathrooms, as well as new flooring and redecoration throughout – ensuring an easy, hassle-free move for the next owners.  

The Willow on Primrose Drive is part of a factored development managed by Hacking & Paterson, with a factoring fee of approximately £60 per month. This covers the maintenance of communal areas, including private roads, lighting, and shared green spaces.  

Craigiehall, Edinburgh -  

Craigiehall Meadows offers a rare opportunity to enjoy peaceful, semi-rural living just minutes from the capital. Nestled alongside the River Almond and surrounded by mature woodland, the development combines the tranquillity of the countryside with the convenience of excellent transport links into Edinburgh and beyond.   

The development sits within the catchment area for Dalmeny Primary School and Queensferry Community High School, both of which are well-regarded and popular with families. The picturesque town of South Queensferry is just a 5-minute drive away, offering a wide range of amenities, including shops, cafes, restaurants, and waterfront walks with spectacular views of the Forth Bridges.   

With easy access to the A90, M90, Queensferry Crossing, and Edinburgh Airport, Craigiehall Meadows is ideally located for commuters and families alike, providing a perfect balance between city access and country calm.  

EPC - D and Council Tax Band - G

Features

  • Tick icon Newly renovated Detached House with garage
  • Tick icon Modern, semi-open plan living layout
  • Tick icon Contemporary two-tone fitted Kitchen with integrated appliances
  • Tick icon Dining Room with French doors to garden
  • Tick icon Stylish Living Room with black glass internal doors
  • Tick icon 5 Double Bedrooms (including Home Office/ Family Room option)
  • Tick icon Principal Bedroom with Dressing Area & En-Suite
  • Tick icon Downstairs WC & Family Bathroom upstairs
  • Tick icon Gas central heating & triple glazing
  • Tick icon Extensive private gardens to the front and rear

Floorplan

Virtual Tour

Interested in this property?

Latest properties