For your FREE Valuation please contact our office here

0131 225 5567 | [email protected]

property image
property image
property image
See all 12 photos
Flat / ApartmentDouble Upper Flat
Sold (STC)

26A Mayfield Gardens, Edinburgh, EH9 2BZ

£565,000 Fixed Price

Overview

4
1
3
No Garden
Permit
E
Freehold
D

Description

Open viewing on Sundays between 2pm-4pm or by appointment.   

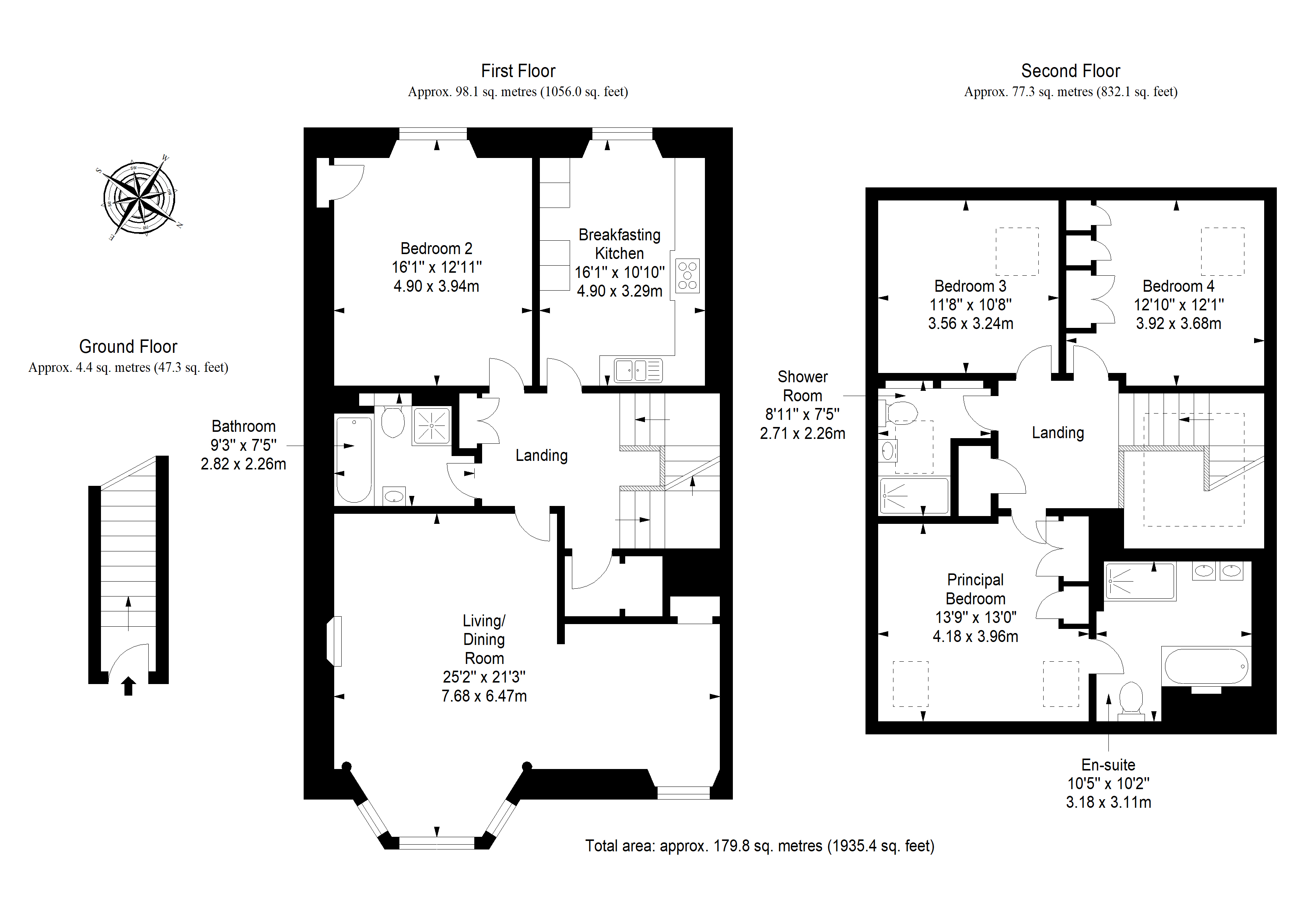
£60,000 Below Home Report.  This four-bedroom, three-bathroom double-upper villa offers a spacious and versatile home with well-proportioned rooms, including generous living areas, which enjoy a tasteful decorative finish blending elegant period charm with modern luxury. The villa lies on the top two floors of a traditional terrace with views towards nearby Salisbury Craggs. It promises a sought-after Southside address conveniently close to Newington's vibrant attractions, the Meadows and Holyrood Park, the main university campus, and Cameron Toll shopping centre – making it a highly appealing proposition for families and investors.

Extras: All fitted floor and window coverings, and light fittings are included.

Property Summary

Desirable city address with scenic views

Spacious double-upper villa with stylish high-end décor

First and second-floor landings with storage

Large light-filled living/dining room with period features

Sunny, well-appointed breakfasting kitchen

Four airy double bedrooms (three with storage)

Two four-piece bathrooms (one in the principal suite)

One shower room

On-street controlled parking (Zone 7)

Gas central heating and partial double-glazing

EPC - D and Council Tax Band - E

Features

  • Tick icon £60,000 Below Home Report
  • Tick icon Spacious double-upper villa with with scenic views
  • Tick icon First and second-floor landings with storage
  • Tick icon Large light-filled living/dining room with period features
  • Tick icon Sunny, well-appointed breakfasting kitchen
  • Tick icon Four airy double bedrooms (three with storage)
  • Tick icon Two four-piece bathrooms (one in the principal suite)
  • Tick icon One shower room
  • Tick icon On-street controlled parking (Zone 7)

Floorplan

Interested in this property?

Latest properties